Special-TIDs - LSM 3.5 SP3 Basic Online

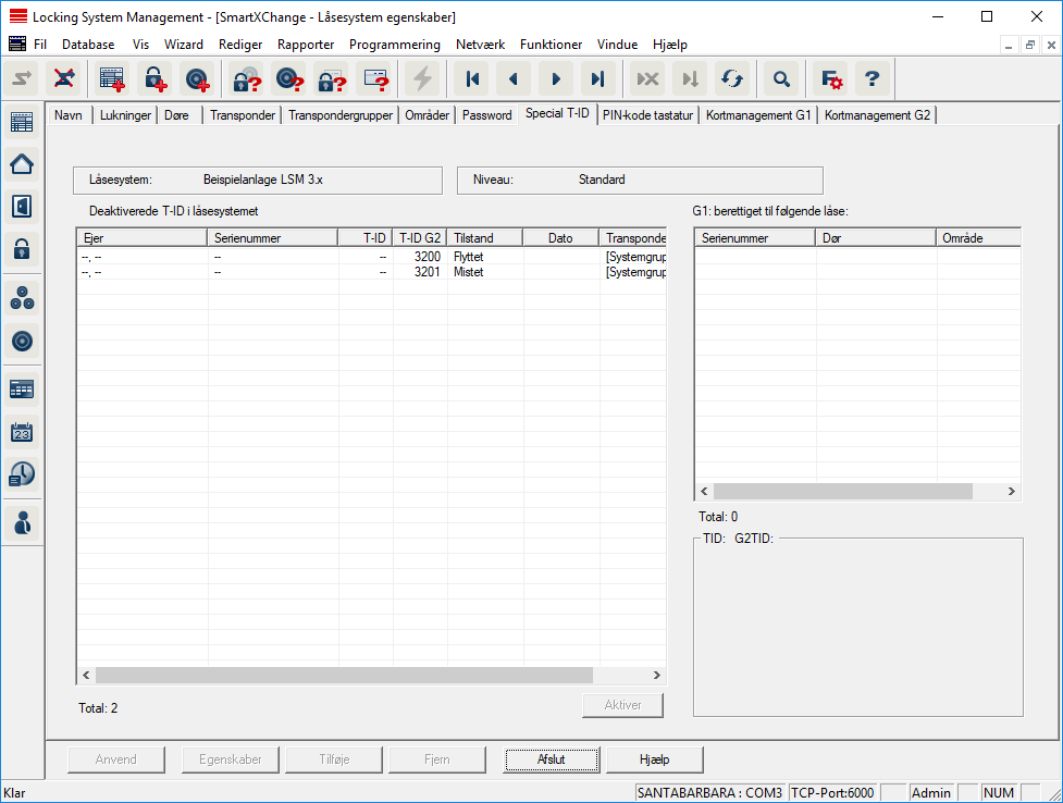
- Den store, venstre tabel viser en oversigt over følgende transpondere:
- Deaktiveret
- Fjernet
- Tabt
- Ikke leveret tilbage
- Midlertidig blokeret
- Den mindre, højre tabel viser alle låse, hvor transpondere valgt i den venstre tabel er berettigede.
- I visningsområdet under den lille, højre tabel vises informationer og bemærkninger om den deaktiverede transponder.
- En valgt transponder (afhængigt af tilstand) kan aktiveres igen med knappen "Aktivér". I G2-protokollen tildeles i dette tilfælde en ny TID til transponderen, hvilket kan medføre behov for programmering ved de berettigede låse.